Warden's Townhouse
Pimlico, London, 2018 - 2021
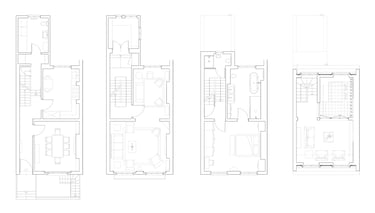
For this project, the brief was to comprehensively refurbish the exterior, redesign the internal layout and design the interior of this Victorian terraced townhouse. Also, the loft had to be extended to create an additional floor with an informal living room and an integrated roof terrace, which is sitting behind a dummy mansard roof with dormer window because of planning restrictions.
The client’s vision was to create a practical, light-filled home for modern day living while preserving its original character. Changes had to be made to each floor throughout the property to create a more logical and functional layout of program. This involved the removal of walls and addition or removal or door openings, complex undertakings that required supporting floor structures and protecting original cornices in the process.In addition to the installation of new plumbing and wiring, the stringent building regulations necessitated the installation of a comprehensive smart sprinkler system throughout the building, as well as a fire door to the loft extension. For aesthetic reasons, the fire door to the loft extension is a jib door secured to a retainer.
The transformation of this townhouse exemplifies how meticulous attention to detail, structural accuracy, and working with planning and regulatory constraints can revitalise a historic yet neglected and outdated dwelling.
















































